Cremona Industrial
(Images for illustrative purposes only)

Closing system suitable for industrial model fire doors, with 1 door locking at 3 (three) points, two (2) vertically (top and bottom) and one horizontally (1) point, all by latches activated at once by means of handles on both sides of the door.
A high-performance industrial fire door safety lock must ensure that anyone can exit the room at any time with minimal physical effort, thus enabling rapid evacuation in emergencies.
INCLUDES KEYLESS DOOR HANDLE FOR THE EXTERNAL SIDE.
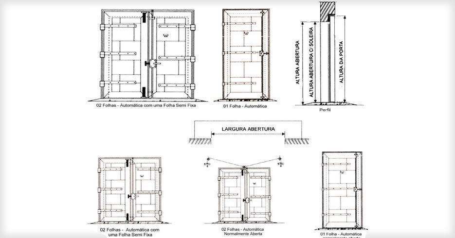
NOTE: Suitable for doors up to 2200mm high by 2200mm wide (total, of the 2 door leaves). If you require larger measurements than this, please inform our sales team.

Industrial Fire Doors
Use: Industrial fire doors, manufactured in accordance with ABNT standard NBR 11711, are used to prevent the spread of fires between environments (commercial or industrial) due to their construction, components and operation, which allow them to sustain high temperatures for at least 4 hours.
Door classification:
- Class A: up to 3m² opening (opening / sliding / guillotine);
- Class B: from 3m² to 9m² opening (opening / sliding / guillotine);
- Class C: from 9m² to 15m² of abertura (of correr);
- Class D: from 15m² to 25m² of abertura (of correr).
Manufacturing/Operation: These doors are constructed with a core of wooden planks, joined together with flat-head nails, making the core cohesive. The entire assembly is covered with tinplate panels measuring up to 35 cm x 50 cm and at least 0.38 mm thick. Doors larger than 3 m² must have a counterweight system to maintain balance in any position, reduce impact against the frame, and facilitate opening. The door closes automatically: a fuse installed to receive a current of hot air from both sides connects the counterweight to the door latch. The fuse melts at 70°C, causing the counterweight to move and consequently close the door.
Model
106
Table of materials
Industrial cremone type facade (right/left side).



